Amélie et Monsieur Hulot

Bauart Architekten und Planer AG
Laupenstrasse 20
3008 Bern

Yorick Ringeisen, Stefan Graf, Benjamin Schütz, Xavier Temme, Marta Peribanez, Miguel Gomez, Rachma Labyad

Wh-p Ingenieure AG
Malzgasse 20
4052 Basel

Martin Strumpf

Gartenmann Engineering AG
Nordring 4A
3001 Bern

Dieter Fuchs

Eingabepläne
Wankdorfcity3 Amelie Monsieur Hulot Blatt 1

«Amélie et Monsieur Hulot» kurz erklärt

Gesamtwürdigung

Insgesamt zeichnet sich die didaktisch klug aufgebaute und umfassend bearbeitete Projekteingabe einerseits durch ihre gekonnte volumetrische Auseinandersetzung und Optimierung des städtebaulichen Richtprojektes aus. Andererseits überzeugt sie hinsichtlich ihres spannenden Mix an Wohnungsformen, die sich aus der spezifischen Lage und Volumetrie der Baukörper ergeben und damit das Potential aufweisen, zu einem integralen Bestandteil des städtebaulichen Gesamtkonzeptes und seiner Identität zu werden. Mit der umfassenden Suche nach Verbesserungen und Optimierungen empfehlen sich die Projektverfassenden in hohem Masse als Kollaborationspartner in der «Werkstatt Wankdorfcity 3».

Wankdorfcity3 Amelie Monsieur Hulot Blatt 8

Projektbeschrieb

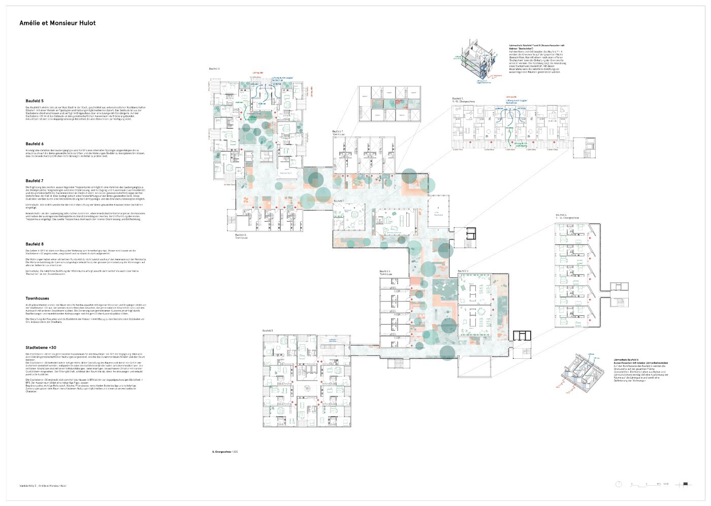
Städtebau und Architektur

Das Projekt hat die Leitideen und Themen des städtebaulichen Richtprojektes gut verstanden. Es greift sie sehr klar auf und ergänzt sie mit einem umfassenden Ansatz der Körnung der Baukörper und ihre volumetrische Verfeinerung, der die Identität dieses geschichteten Stadtteils und die Ablesbarkeit der Elemente/Quader in ihrer Fern- und Nahwirkung noch verstärkt. Die Staffelung und Schichtung der Gebäudekörper wird übernommen und weiterentwickelt. Der abgetreppte Baukörper des Baubereichs B7 wird gespiegelt, wodurch seine Schichtung im Zentrum des Quartiers noch stärker zum Tragen kommt. Auch die Auskragung des Baubereiches B8 wird vergrössert, was zusätzlich einen grosszügigeren Innenhof schafft, der eine natürliche Belüftung erlaubt. Die Komplexität des städtebaulichen Richtprojektes wird vollumfassend aufgenommen, umgesetzt und weiter optimiert mit einfachen Spielregeln (Feinkörnigkeit, aussenliegende Erschliessungskerne, übergeordnetes Materialisierungskonzept, Adressierung der Nutzungen, Vernetzung und Zugänge etc.), welche auch als Leitlinien der Weiterentwicklung des Gesamtprojektes dienlich sein können. Die Anpassungen am Richtprojekt betreffen Feinjustierungen der Volumetrie oder aber die Einführung eines zusätzlichen Erschliessungskernes beim Baubereich B7, welches das Treppenhaus des Baubereich B6 als identitätsstiftendes Merkmal in der Projekt-Silhouette Richtung Autobahn ergänzt. Die Aussen- und Innenerschliessung wurde so weiterentwickelt, dass eine gute Orientierung erzielt werden kann (z. B. Lage der Wohnungseingänge), die Interaktion zwischen den verschiedenen Nutzergruppen verstärkt, aber auch die Einbindung der Staufacherstrasse ins Projekt massgeblich verbessert werden kann.

Im Zentrum der Weiterentwicklung stehen neben den Überlegungen zur Volumetrie, die Qualität der Stadtterrasse, sowie die Attraktivität und Qualität der Wohnungstypologien. Die Stadtterrasse ist fliessend und durchlässig gestaltet. Die Wegführung ist direkt und wirkt übersichtlich, wodurch visuelle Bezüge zwischen den einzelnen Teilräumen der Stadtterrasse erzeugt werden. Die Durchgänge im Baubereich B7 wirken hingegen noch (zu) wenig grosszügig, wenn auch z. T. doppelgeschossig geführt. Auch fehlen jegliche Hinweise zu Gestaltung und zu Bespielungsmöglichkeiten dieses zentralen Stadtraumes. Drei kleinere Gebäudevolumen auf der Stadtterrasse, gebildet durch Reihenhauswohnungen mit Privatgärten, erzeugen einen «menschlichen Massstab».

Die meisten Gemeinschaftsräume sind offen gestaltet wodurch Transparenz und Tiefenwirkung überwiegt. Die präsentierte Visualisierung der Stadtebene lässt erahnen, dass hier in Zukunft ein attraktiver gemeinschaftlicher Freiraum entstehen kann, der auf 30m Höhe einen gewissen dörflichen Charakter ausstrahlen kann. Die vorgeschlagenen seitlichen Abschlüsse der Stadtterrasse (3 m hohe Wand) werfen Fragen auf, und stehen in einem gewissen Widerspruch zum Anliegen hier eine grosszügige neue Stadtebene zu schaffen, die auch spektakuläre Fernblicke ermöglicht. Diesbezüglich gilt es in der Weiterarbeitung verschiedene Szenarien der Gestaltung zu testen und miteinander zu vergleichen. Dabei sollen auch internationale «Best practices» der Gestaltung solcher Dachterrassenkanten verglichen werden. Auf Stadtebene werden mehrgeschossige Verbindungskorridore zwischen den Bürokörpern vorgeschlagen. Dadurch entsteht ein sehr introvertierter Eindruck des Neuenschwanderhofs, und eine (zu) abgeschlossene Innenwelt auf Stadtebene. Es gilt hier die Balance zu finden zwischen Lärmschutz einerseits und gleichzeitig visueller Durchlässigkeit und dem Ineinander-Übergreifen der unterschiedlichen Innen- und Aussenräume auf Stadtebene andererseits. Die vertikalen Erschliessungskerne und Verbindungen werden inszeniert und gezeigt und tragen zur Identität der geschichteten Stadt bei. Das Prinzip der vertikalen Erschliessung des Richtprojektes wird ergänzt durch einen neuen aussenliegenden Erschliessungsturm beim Baubereich B7. Auf Stadtebene bieten die vorgeschobenen Erdgeschosse Schutz vor Fallwinden, erhöhen den Aufenthaltskomfort und tragen auch hier zum Projektbeschrieb «menschlichen Massstab» zwischen den sehr hohen Gebäudekörpern bei.

Das Projekt versucht mit den Mitteln der Fassadengestaltungen und einer umfassenden Begrünungsstrategie über sämtliche Neubauvolumen eine Einheit zu schaffen. Damit wird die lebendige und vielgestaltige Atmosphäre eventuell. zu stark überspielt. Die gewählten Strategien zur Begrünung wirken teils plakativ und zu linear übersetzt bzw. wirft viele Fragen bezüglich Ausdrucks, Kosten, Unterhalt und Betrieb auf. Eine stärkere Entwicklung aus dem Kontext der bisher entwickelten städtebaulichen Strategien und Absichten wird vermisst.

Amélie et Monsieur Hulot Modellbild
Ansicht West

Nutzung und Funktionalität

Das Projekt zeichnet sich durch sehr qualitätvolle Lösungen der Wohnungstypologien für den Baubereich B8, B6 und B5 aus. Damit wird auch lärmtechnischen Fragen durch geschickte Optimierung der städtebaulichen Volumetrie und der intelligenten Ausgestaltung der Grundrisse begegnet (anstelle von technischen Hilfslösungen), welche wiederum zu einer kontextuellen und unterschiedlichen architektonischen Gestaltung je Baukörper beitragen. Am Baubereich B5 wird prototypisch das Prinzip der Schichtung von Nachbarschaften aufgezeigt, welches von grossem Mehrwert für die zukünftigen Bewohnerinnen und Bewohner werden kann und einen zentralen Beitrag zum «Leben miteinander» liefern wird. Es werden zwischen Stadtebene und Dachebene unterschiedlich aneignungsfähige Räume angeboten, sowie gemeinschaftliche Nutzungen (z. T. mehrgeschossig), die den verschiedenen Aussenräumen zugeordnet werden.

Durch das grosszügige Angebot an Gemeinschaftsräumen wird es auch denkbar eine möglicherweise kompaktere Wohnfläche der Einzelwohnungen zu kompensieren. Der Adressierung der privaten Wohnräume an diese gemeinschaftlichen Terrassen gilt es in der weiteren Bearbeitung vertieft Betrachtung zu schenken (da heute noch ungelöst).

Die Erschliessungen über separate Zugänge im Erdgeschoss entflechten, die Wohneingänge führen auf die Stadtterrasse auf +30 m mit sozialräumlicher Qualität: An die Freiräume grenzen Gemeinschafts- und Wohnnutzungen mit abgestuften Öffentlichkeitsgraden an, welche Identifikations- und Aneignungspotenzial haben. Der Pavillon mit Concierge steht (wenig nachvollziehbar) am Rand. In der Wahrnehmung verbindend wirken die beiden Aussentreppen auf die zweite Stadtfläche. Potenzial haben die (vertikalen) Nachbarschaftscluster, welche auch doppelgeschossige Gemeinschaftsräume vorsehen.

Situationsplan Erdgeschoss
Schnitt Baufeld 8

Wirtschaftlichkeit

Die Wohnungslayouts weisen zwar eine hohe Qualität auf. Die Markttauglichkeit bzw. Effizienz der Wohngeschosse wird jedoch aufgrund der grossen Erschliessungsflächen noch in Frage gestellt. In Bezug auf Baukosten und Realisierbarkeit ist der Vorschlag noch kritisch zu beurteilen und Alternativen zu prüfen.

8. Obergeschoss (Stadtterasse)
9. Obergeschoss Baufeld 8

Umwelt

Das Projekt zeigt mit den entwickelten Lärmtypologien für die bearbeiteten Baubereiche im Detail auf, wie auf die Lärmsituation reagiert werden soll. Das Konzept zeigt einen interessanten Ansatz mit nach oben offenen Loggias (Dachatrien), sowie der Anordnung von Balkonen in Kombination mit Lärmschutzwänden/-scheiben. Insgesamt ein vielversprechender und innovativer Lösungsansatz, welcher wirkungsvolle Massnahmen in Bezug auf den Lärmschutz vorsieht und Wohnnutzung an der lärmzugewandten Seite ermöglicht. In der nächsten Projektphase ist das gewählte Konzept stufengerecht zu konkretisieren, sowie der Nachweis zu erbringen, dass die aufgezeigten Massnahmen die entsprechende Wirkung erzielen.

Der Verfasser schlägt als Tragwerk für die neuen Gebäude eine vorgefertigte Holz-Hybridbauweise als Skelettbau vor, welche auf einem rechteckigen Grundraster aufgebaut werden sollen. Damit wird der graue Energieanteil reduziert. Die Auskragungen sollen mit einer diagonalen Strebe über vier Geschosse abgefangen werden. Der Vorschlag unterstützt die Zielsetzung bezüglich nachhaltigen Bauens des Richtprojektes. Weiter wird ein effizientes Stützenraster für den Holzbau vorgeschlagen und die Fassadenmaterialien sollen robust und langlebig sein.

Lärmtypologien Lüftung durch Innenhof
Lärmschutz Baufeld und Aussenfassaden mit lokalen Lärmschutzwänden
Lärmtypologien Lüftung durch Laubengang