Mis en Place

HHF Architekten GmbH 
Allschwilerstrasse 71A 
4055 Basel

Tilo Herlach, Simon Hartmann,Simon Frommenwiler, Mariana Santana, Eva Razloznik, Changkun Ma, Christof Oldhues, Adrian Hug

Eingabepläne
A PLAENE MISE EN PLACE 3 1

Gesamtwürdigung

Der Projektbeitrag «Mise en place» bestätigt in vielerlei Hinsicht das städtebauliche Richtprojekt. Leider gelingt es den Projektverfassenden nicht, ihre in den Modellen detailliert geführten Untersuchungen in den Plangrundlagen weiterzuführen und aufzuzeigen. Die Aussagen bleiben zu schematisch und teils zu allgemein. Der Beitrag schafft es nicht, die Reihe von skizzierten Anliegen und Ideen tragend auszubilden und sich damit – trotz guter Ansätze – für die Mitarbeit in der «Werkstatt Wankdorfcity 3» zu empfehlen.

A PLAENE MISE EN PLACE 4

Projektbeschrieb

Städtebau und Architektur

Die Projektverfassenden nehmen bereits im Kennwort Bezug auf die Vorarbeiten und Stossrichtungen des Richtprojektes. «Mise en place», die Zutaten sind angelegt. Dabei will sich das Team mit seinem Beitrag als Gesprächs- und Projektpartner für eine langfristige und kooperative Zusammenarbeit einbringen und empfehlen.

Es geht in dem Beitrag entsprechend mehr um das Verstehen und Austesten der Spielregeln und Anlagen des Richtprojektes, als um eine ihrer Ansicht nach im Prozess verfrühte, präzise und weiterführende Gestaltung. Das Richtprojekt verstehen sie in seiner Stossrichtung als unfertige aber «sehr präzis skizzierte Vision». Eine Reihe von Gedanken, Anliegen und Ideen werden vorgestellt, um die Diskussion und Suche nach weiteren und noch besseren Ideen anzuregen. Ihre Arbeitsweise zeugt von einer Reihe von Versuchen und Überlegungen. Vor allem die zusätzlichen Arbeitsmodelle in ihrer detaillierten Anlage zeugen vom Prozess, ein eigenes Verständnis zur Aufgabe zu entdecken und zu entwickeln. In diesen Arbeiten sind erste Spuren und Absichten erkennbar. Das Richtprojekt wird in seiner Grundanlage angenommen, fein justiert und kaum merklich adaptiert.

Die eigenen Ideen werden durch drei Fragestellungen und drei Vertiefungen vorgestellt. Die Fragen nach «Zugehörigkeit, Verhandlungsfähigkeit und Porosität» bilden den Fundus der Auseinandersetzung. Mit der Frage nach der gewollten und ungewollten Zugehörigkeit wird angeregt die Anbindung an die beiden Etappen WankdorfCity I und II m glichst sanft zu gestalten. Das Anliegen ist verständlich, die vorgeschlagenen gestalterischen Massnahmen aber wenig nachvollziehbar. Vielmehr mag die thematisierte horizontale und vertikale Porosität dies zu leisten. Hier geschieht die Anschlussfähigkeit an den Rändern, überträgt sich in die Mitte und verbindet sich nach oben. Diese bereits im Richtprojekt vorhandene Eigenschaft soll durch das Verschränken von dem gebauten und dem freien Raum durch zusätzliche Elemente gestärkt werden. Transluzide Vordächer, kleine Nebengebäude und «biologische Nischen» sind als Kondensatoren gedacht. Die Ideen bleiben leider zu schemenhaft, um einen tragfähigen Beitrag zu leisten. Mit der dritten Frage, der Verhandlungsfähigkeit, suchen die Projektverfassenden nach Raum für unscharfe und damit verhandelbare Räume und Bauteile. Konstruktive und formal unabhängige «Plattformen» sichern das Potenzial für zukünftige Partizipation. Die Gedanken sind nachvollziehbar, inwiefern diese Räume einen eigenen formalen Ausdruck aufweisen sollen, um dadurch eine bestehende Absicht weiter zu verdichten, bleibt fraglich.

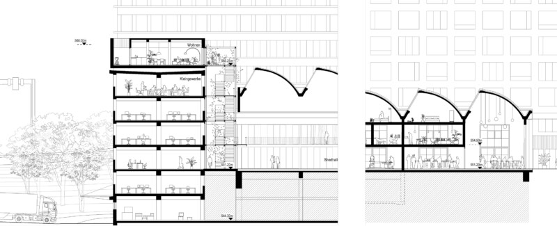
Bewusst beschäftigen sich die räumlichen Vertiefungen mit drei unterschiedlichen, nicht zusammenhängenden Baubereichen. Exemplarisch soll die architektonische Denk- und Arbeitsweise dadurch sichtbar werden. Der Kopfbau von Baubereich B1 der Shedhalle wird um ein Wohngeschoss und eine zusätzliche Raumschicht erweitert. Der Ansatz ist interessant, sorgt die Massnahme doch für

eine weitere Aktivierung des Stadtraums und eine zweiseitige Belichtung des Kopfbaus. Folgerichtig liegt die Erschliessung der Wohnaufstockung an einem tiefen, südlich ausgerichteten Laubengang. Die Privatsphäre ist hier nicht direkt gegeben, Begegnung ist Programm. Kompensiert wird dieser Umstand durch lärmgeschützte kleine Höfe im Norden. Im Grundsatz folgt der angrenzende

Gewerbebau Baubereich B2 dem Richtprojekt. Der Vorschlag für den Wohnbau Baubereich B4 am Geleise bringt den Nachweis der Bespielbarkeit. Unklar bleiben die gewonnenen Erkenntnisse dieser Überprüfung. Die Absicht, eine grosse Hausgemeinschaft mit unterschiedlichen Haushalts- und Wohnungsgrössen abzubilden, wird erkannt. Strukturell mag der Entwurf wenig zu überzeugen. Das zentrale runde Treppenhaus erzeugt im Grundriss Zwänge, die Wohnungen sind wenig flexibel und adaptierbar. Bei der dritten Vertiefung nimmt sich das Team der Stadtterrasse auf 30.0 m an. Die Plattform wird als Wohn- und Begegnungsebene angedacht. Die Grundlage dazu bilden einfach eingerichtete Studiowohnungen für ca. 40 Bewohner. Erweitert wird das Angebot mit grösseren, konventionellen Wohntypen und Arbeits- sowie Freizeitnutzungen. Die Ebene bindet die Baubereiche B5 bis B8 zusammen. Beabsichtigt wird eine «soziale Zentralität». Der Freiraum umfliesst gleichwertig die Nutzungseinheiten. Unklar erscheint dadurch die Hierarchie der Schwellenräume und Öffentlichkeitsgrade. Wer den grosszügig bemessenen Freiraum nutzt und den bewusst hohen Anteil an Nichtwohnnutzung bespielt, wird infrage gestellt.

Das Projekt bleibt in einer formalen Übersetzung der Freiräume ausgehend vom Richtprojekt. Es entfernt sich nur wenig vom Grundprojekt. Dadurch ist es schwierig einzuschätzen, wie weit die Projektverfassenden in der weiteren Diskussion vielleicht überraschende Impulse zur Weiterentwicklung des Freiraums bieten könnten. Die detaillierten Aussagen zu Grundriss und innerer Organisation finden leider in den Freiräumen keine Fortführung.

Mis en place Modellbild
Situationsplan Erdgeschoss

Nutzung und Funktionalität

Mit den gut sichtbaren Plattformen für zukünftige Verhandlung wird der Prozess des Aneignens und Entstehens betont. Brückenelemente oder Untersichten werden als Orte der Gestaltungsfreiheit ausgewiesen. Angesprochen werden dabei vor allem Aneignungsmöglichkeiten von Tieren, die sozialen Möglichkeiten bleiben im Hintergrund. Nutzungen an den Stadtterrassen, und damit deren Funktionen, werden nicht konkretisiert. Die kleinen Gebäude als ‹little helpers› fungieren als zusätzliche Aneignungsräume. Sozialräumlich lässt die grosse Offenheit zu viel in der Schwebe.

Visualisierung Halle
Axonometrische Übersicht

Wirtschaftlichkeit

Der Projektbeitrag enthält wenig konstruktive oder architektonische Hinweise, welche die Markttauglichkeit und Wirtschaftlichkeit in Frage stellen würden. Die vorgeschlagenen Wohngeschosse weisen ein mehrheitlich gutes Verhältnis zwischen Miet- und Geschossflächen auf. Tendenziell ist von einer wirtschaftlichen Umsetzung auszugehen.

Schnitt durch Gewerbehaus mit Wohnaufstockung und Halle

Umwelt

Das Projekt hat sich mit der Problematik der Aussenlärmbelastung stufengerecht auseinandergesetzt. Das Konzept basiert auf der Idee mit «Durchwohnen» in Kombination mit der Anordnung von Loggias, Laubengängen und Innenhofsituationen, sowie mit entsprechender Grundrissanordnung. An den etwas weniger lärmbelasteten Fassaden ist die Anordnung von Erkerfenster vorgesehen, welche einen zusätzlichen Lärmschutz bieten und so alternative Lüftungsmöglichkeiten ermöglichen. Insgesamt ein sorgfältig ausgearbeiteter Lösungsansatz, welcher eine mehrheitliche Lüftung der Räume über die Seiten- und Rückfassaden ermöglicht.

Das Projekt möchte Fassadenstrukturen für Pflanzen und Vögel zu einem wichtigen Teil der Silhouette werden lassen. Das Nebeneinander- und Zusammenleben von Menschen, Tieren und Pflanzen soll auf den Plattformen auf allen drei Hauptebenen mit spezifischen architektonischen Elementen (z. B. Pflanzentrog, Zisterne, Gewächshaus, Pergola etc.) geschaffen werden. Dadurch soll

ein an den jeweiligen Dachgarten angepasstes funktionierendes Ökosystem geschaffen werden. Photovoltaik Anlagen werden auf dem Dach und an den Fassaden vorgeschlagen. Der Projektbeitrag macht bezüglich des optimierten Energiebedarfs und Ressourceneffizienz wenig bis keine Aussagen.

Ansicht Süd